一、胶球清洗装置用途:
二、胶球清洗装置是汽轮发电机组在运行中对凝汽器冷却管进行有效清洗的设备。该装置使用性能的好坏,直接影响到凝汽器的清洁程度和传热效率。是提高电厂经济性,保障凝汽器安全运行不可缺少的设备。

二、胶球清洗装置优点:
1、结构设计合理
2、操作方便
3、胶球回收率高(≥96%)。
4、二次滤网过滤能力强。(有卧式或立式,手动或电动型式)。
三、胶球清洗装置工作原理:
选用合适的海绵胶球,球的湿态直径比冷却管内径略大一点(约1-2mm),且湿态比重和水相近。将胶球投入装球室内,数量为凝汽器进水室铜管数的10%左右。然后启动胶球泵,打开系统两端球阀,胶球就在此循环水进口压力略高一些的水流带动下,进入凝汽器水室.因胶球是一个多微孔柔软的弹性体,在循环水进口压力差的作用下,被挤压通过冷却管,对冷却管内径进行一次抹擦,使管内壁污垢随水流带出,胶球随循环水经出水管进入收球网,在收球网板的阻拦下,把胶球分离出来,由胶球泵抽出重新回到装球室,如此循环往复对凝汽器冷却管实现连续自动清洗。
四、胶球清洗装置的组成部分:
1、二次滤网 2、收球网 3、装球室 4、胶球泵 5、分汇器 6、控制柜 7、阀门和管路。

五、胶球清洗装置主要部件规格型号及选型表:
六、

1、收球网
收球网是胶球清洗系统的关键设备,它的功能是把胶球从冷却水中分离出来,且保证不漏球、不卡球。收球网安装在冷却水出口管段上,从凝汽器流出夹带胶球的水经过收球网时,球被回收并由引出管从收球网中引出。收球网的栅格网板可以转动,在胶球循环运动时网板置于收球位置,在不投运胶球清洗时网板置于反冲洗位置,此时网板上的杂物被水冲走,同时又减少网板的水阻。网板的运转定位由电动执行机构保证(小型收球网为手动操作)。
(1)XSD型收球网

本型旋摆自锁式收球网优点如下:受力合理、密合力大;水阻小、网板不变形;传动机构稳定、零维护;设计新颖、耗功小、环保节能;收球率持续稳定保持在98%以上。
(2)XSF型收球网

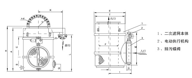
2、二次滤网:
当冷却水夹杂着杂物通过系统时,杂物被小孔滤网阻挡在滤网迎水面,冷却水通过小孔被净化后进入凝汽器,由滤网中的反冲洗装置及排污阀联动进行反冲洗,水流反向流动,卡在进水面上的杂物被水流反冲脱离网孔由排污阀引出。只要净化滤网不停地工作,冷却水进入凝汽器就始终是清洁的,滤网的阻力也不会增加。
二次滤网型号
WED型二次滤网 FED型二次滤网(下进上出型) XGD型二次滤网(卧式)
WED型二次滤网
该产品系列为带蝶阀的外旋式二次滤网,冷却水从网芯外部流向内部,利用蝶阀的导向,造成冷却水在二次滤网的外围产生旋转流动,将水中杂物从网芯上冲下并从排污管排出。

WE型二次滤网外形尺寸

FED型二次滤网
FED型二次滤网外形尺寸小,操作灵活,根据不同的用途,可改变滤网孔的大小,自行反冲洗使超出规定的固体杂物从水流中分离出来,反冲洗效果好,可以迅速排出分离出来的杂物,局部网孔反冲洗对整体流动干扰小,保证供水稳定,由时间差和差压仪表自动控制反冲洗操作,及时排除分离的杂物。



4、胶球泵
胶球泵是胶球清洗装置中使胶球不断循环的动力源,由收球网中引出的密集球的水流通过胶球泵后提高压力送入冷却水管内.该泵是专用的无障碍离心泵,具有不堵球、不损坏球、对胶球磨损小的特点,根据不同的使用条件,选用参数规格不同的胶球泵.建议选用扬程高的胶球泵,确保球的正常回收.

5、程控柜
程控柜为胶球清洗专用设备,程控采用PLC可编程控制器,具有自动、手动控制功能。开关量输入模块DⅠ,开关量输出D0。按工艺流程及设备要求分组,主要按液位信号及PH信号自动控制设备,各设备的运行、备用,状态送到控制面板显示。PLC负责点的采集、回路控制、连锁程序控制。使检测更准确、到位,确保球的高率回收。具有远程控制功能。
6、分汇器

分汇器是一个三通(管)阀。通过其中导向板的切换可使胶球进入需要清洗的一侧凝汽器中。也可作为收球网胶球引出管的汇合和接球管的分流三通管使用。
7、胶球
是冷凝管(容器或管道)清洁系统的主要供应商之一。制造并且销售自己品牌的清洁胶球,并以胶球质量保证冷凝管清洁系统的工作性能。欢迎来电咨询选购。
欢迎广大客户来公司考察产品及洽谈业务,我们将热烈欢迎!
销售及区域热线:
服务一部:0518-85798000
服务二部:0518-85397888
汤经理:17768585576 18014441222
邮 箱:jiangsubeijia@126.com