一、工业滤水器:
在电站、化工、印染、造纸等行业供用水管边上,由于从江河、湖海中取水的来源不同,所以在水中存在着多种多样的杂质,如工业废弃物、浮草、鱼虾、田螺等。有时,在进入供用水系统的管边前,都采用简单的栅栏过滤,条件比较好的用一次滤网进行处理,但处理后的水中仍存在着一些体积较小的杂质。当它们在供用水系统中聚积到一定程度而不清除时,将导致通流面积减小,产生堵塞,严重时造成停机,对安全运行构成极大威胁。鉴于经济、方便、维修等诸多因素,我公司设计和制造的反冲式工业滤水器系列产品,可满足用户要求,解决上述问题。

1、工业滤水器主要技术参数及型号说明:
2、(1)、工作压力≤0.6MPa
3、(2)、过滤精度:φ2~φ8mm(其它精度,根据要求来订)
4、(3)、额定流量下的阻力≤0.05MPa

2、工业滤水器结构与使用说明:
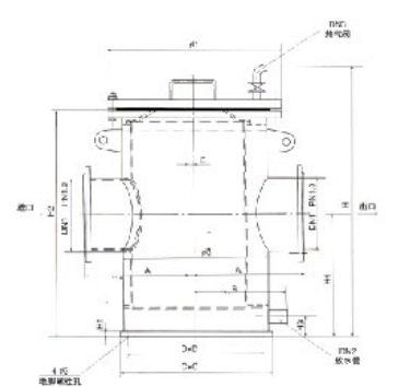
(1)、工业滤水器由①转动轴、②定位杆、③支架壳体、④网芯、⑤进水口、⑥出水口、⑦排污口组成(见图)。一般水质为淡水型的,滤网和内部主要部件为普通不锈钢材质,若为海水或具有强酸碱型的,则采用特殊不锈钢材质。

(2)、工业滤水器入管道系统后,水就会从进水口进入滤水器内,过滤后的水从出水口流出,当水杂质能过网芯时,由于体积大于网芯孔,而被截留在网芯上,当聚集到一定数量时,即造成进、出水口之间有一定压力差,这时可转动网芯进行轮次自动反冲洗,杂质就会从排污口自行排出,如此往复循环,用户可根据水中杂质多少、而定时、定期自动反冲排污。
3、工业滤水器使用范围
安装在电站、化工、印染、造纸等多种行业的DN500以下供用水管边上,属于替代二次滤网的小型滤水器,可任意选定精度,具有体积小,造价低,过滤流量大等诸多优点;特别适用于母管制供用水的分支管道上,从而具有二次滤网所不及的优点。一般情况下,不须增加动力源,只需采用手动,手柄按产品所标定的位置依次转动,滤水器内部的几个过滤室即可逐一清洗,从而达到自动反冲过滤水中杂质的目的。
二、工业全自动滤水器:
自动清洗滤水器能对水中杂草、塑料薄膜、纸布屑、悬浮物等进行过滤作用,并能根据各地水质情况对滤网实行自动地连续或间断清洗,保持网面经常清洁,是目前我国的水过滤设备之一,适用于各种水过滤场合。
1、主要技术参数:
(1)工作压力~0.6MPa
(2)滤网孔径φ2~8mm
(3)额定流量下的阻力≤0.05MPa
2、结构说明:
(1)传动机构采用双级摆线针轮减速机,滤水器转动灵活,控制系统采用PLD程控,对滤水器实行自动程序或间歇性反冲洗。
(2)滤网网芯底部与支板上密封由原来的橡胶皮改为硬密封,能做到>2mm的杂物不从底部流到出口端,确保滤网的过滤能力。
(3)考虑到某些条件下水中含沙量大,上承轴座采用双重密封式,水侧为防泥沙密封,采用2道骨架密封圈,止泥沙进入轴套磨损转轴,外侧采用4道填料式密封。
(4)上轴座处试设防溢流管,做到无泄漏,文明生产。
(5)上、下轴套均为可拆卸式,无需进行筒体解体即可方便更换
三、LSG型管道直连式滤水器:
LSG型系列滤水器结构如图所示,过滤面积为流通面积的2.5-3倍,在环形不锈钢板上包含有许多小孔,主回路为双层结构,反冲洗回路为单层结构,能够达到很高的强度,全部采用不锈钢制造,其结构合理,性能可*,经久耐用,其滤芯更换也非常方便。订货时需注明是主回路,还是旁路(即反冲洗)。
1、技术规范:
(1)公称通经DN25、40、50、65、80、100、125
(2)公称压力PN≤1.6MPa
(3)适用介质:水、油等
2、型号说明:
四、LSD型直通式滤水器:
1、用途:
LSD型直通式滤水器适用于凝结泵、给水泵工业水泵,闭式水泵系统介质过滤之用,也可以作为管边滤网之用,对管边中的机械杂物,悬浮物等起过滤作用,并能根据压差大小对滤网清洗,保持滤网清洁,该型泵进口滤网的通流倍率较大。

2、主要技术参数:
(1)设计压力0.4MPa、0.6MPa
(2)滤网孔径φ3~φ8mm
(3)水阻≤0.05MPa
(4)通流倍率4.5倍
五、精密滤水器
1、概述:
精密激光滤水器是根据国家电力公司《防止电力生产重大事故的二十五项重点要求》第11.3.1.1及时雨11.3.1.2条发电机内冷水系统滤网需将钢丝、铜丝滤网等更换为激光打孔的不锈钢板新型滤网,防止滤网破碎进入发电机线圈的规定而开发生产的一种高科技产品,其产品特点是采用了高强度激光打出的微孔网板,可阻挡杂质及颗粒进入发电机线棒,防止杂质堆积而造成线棒阻塞的事故发生。
2、特点:
(1)、安全性高。消除了因滤网破碎而导致内冷水线棒堵塞的事故隐患。
(2)、对于大型发电机、汽轮机油系统的过滤也能起到阻挡前面滤网碎片的功效。所以也适用于电厂油系统。
(3)、精度高,均匀性好。由于采用激光打孔,所以网孔精度及均匀性均呈现出非常规则的特点。
(4)、强度及抗腐蚀性高。激光网板的优质材料保证了大强度高冲击的水流下稳定工作的性能,同时耐腐蚀性也非常出色。
3、技术规格:
(1)微孔直径小可达0.2mm,但考虑水阻因素,一般推荐为0.3mm。大也可至0.5mm。
(2)通流比。指精密滤水器进出口管径面积与内部滤芯过流面积之比,一些般推荐为1:4,部分水中杂质较多,流通条件较差的可适当增加。
4、造型:
根据客户的现场尺寸,在满足通流比的情况下,为客户量身定做不同形式的滤水器,如高进低出式、斜插式、侧进中出式等等。
5、型号意义:

六、 使用说明:
(1)、将滤水器装入系统焊接法兰时注意焊接过程中勿将焊渣溅入滤芯上。
(2)、试机前将管路系统清洗干净。
(3)、试水时先打开进水口阀门,关闭出水口阀门,并打开排空阀。
(4)、当排空阀出水后将其关闭,并打开出水口阀门即可投入正常运行。
七、 清洗说明:
(1)、如果开始试机时系统较脏,可在走两三遍水后将滤水器上部法兰打开,轻轻取出滤水器芯。
(2)、取出滤芯后将滤芯浸在清水里用软毛刷清洗滤芯外部,清洗时注意勿用坚硬物体碰击滤芯体。
(3)、打开底阀,将滤筒内脏物清洗出去。
(4)、将滤芯轻轻装入滤筒内,放好垫片及法兰盖,拧紧螺栓。
(5)、在正常运行后,如水质较好,可半年至一年按上述程序清洗一次。
欢迎广大客户来公司考察产品及洽谈业务,我们将热烈欢迎!
销售及区域热线:
服务一部:0518-85798000
服务二部:0518-85397888
汤经理:17768585576
18014441222
邮 箱:jiangsubeijia@126.com